
Thông tin dự án căn hộ dịch vụ ở Thủ Đức
- Chủ đầu tư: Anh Hoàng
- Địa điểm: Thủ Đức
- Quy mô: 1 hầm, 4 tầng
Trong bối cảnh quỹ đất đô thị ngày càng đắt đỏ, việc tối ưu hóa công năng công trình để vừa ở, vừa kinh doanh hoặc cho thuê đang trở thành xu hướng đầu tư bền vững. Mẫu thiết kế nhà phố tân cổ điển 4 tầng dưới đây là một ví dụ điển hình cho sự kết hợp tinh tế giữa thẩm mỹ kiến trúc và hiệu quả kinh tế.
.png)
Căn hộ dịch vụ kết hợp kinh doanh ở Thủ Đức
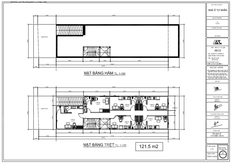
Nội dung thiết kế xây dựng căn hộ dịch vụ kết hợp kinh doanh
Kiến trúc Tân Cổ Điển: "Thanh nam châm" thu hút khách hàng
Đối với mô hình căn hộ dịch vụ và kinh doanh, mặt tiền đóng vai trò cực kỳ quan trọng trong việc định vị phân khúc khách hàng.
Sự sang trọng từ cái nhìn đầu tiên: Tầng trệt được thiết kế cao ráo, toàn bộ mặt tiền ốp đá granite màu vàng hoàng gia. Lựa chọn này không chỉ tạo sự vững chãi mà còn làm nổi bật khu vực kinh doanh, giúp thu hút khách vãng lai và tạo niềm tin về một dịch vụ cao cấp.
Nét tinh tế ở khối nhà ở: Các tầng phía trên sử dụng tông màu trắng kem chủ đạo, kết hợp cùng hệ thống phào chỉ chạy dọc cột trụ. Những đường vòm cong ở hệ cửa sổ tầng áp mái giúp công trình thoát khỏi sự thô cứng của nhà phố thông thường, mang lại vẻ đẹp lãng mạn, thanh thoát theo phong cách Châu Âu.
Giải pháp công năng: Tối ưu hóa lợi nhuận trên từng mét vuông
Điểm mấu chốt của thiết kế này là sự phân bổ không gian thông minh để đảm bảo tính riêng tư nhưng vẫn thuận tiện cho kinh doanh:
Không gian kinh doanh (Tầng trệt & Lửng): Thiết kế mở với hệ cửa kính cường lực lớn, tối ưu hóa diện tích trưng bày hoặc làm văn phòng đại diện. Vỉa hè rộng rãi phía trước là điểm cộng lớn cho việc dừng đỗ xe.
Căn hộ dịch vụ tiện nghi (Các tầng trên): Được chia nhỏ thành các studio hoặc căn hộ 1 phòng ngủ khép kín. Mỗi căn hộ đều sở hữu ban công riêng với lan can sắt mỹ thuật, đảm bảo độ thông thoáng và ánh sáng tự nhiên – yếu tố then chốt để giữ chân khách thuê lâu dài.
Giao thông tách biệt: Kiến trúc sư đã khéo léo bố trí lối đi hoặc thang máy sao cho khách thuê căn hộ không ảnh hưởng đến hoạt động kinh doanh phía dưới, đảm bảo sự chuyên nghiệp và an ninh.
Các căn hộ trong đều được bố trí hợp lý về ánh sáng tự nhiên, thông gió và ban công. Cây xanh được đưa vào thiết kế ban công và tầng thượng, vừa tăng tính thẩm mỹ vừa giúp cải thiện vi khí hậu trong không gian sống. Lối đi riêng biệt giữa khu vực kinh doanh và căn hộ đảm bảo sự riêng tư cần thiết.
(11).png)
(17).png)

Thiết kế căn hộ 1


Thiết kế căn hộ 2

Nội thất được thiết kế tinh giản, gọn gàng, hoàn toàn phù hợp với xu hướng "sống tối giản" hiện đại.
Hình ảnh thi công thực tế
(13).png)
(19).png)
(15).png)
(49).png)
(26).png)
Hình ảnh thi công công trình sẽ được cập nhật sớm nhất!
Tại sao nên lựa chọn Xây Dựng An Cư
Được hình thành 2009, hiện nay công ty đã và đang thiết kế – thi công – giám sát xây dựng nhiều công trình nhà phố, biệt thự, cao ốc văn phòng ở các quận Tân Bình, Tân Phú, Bình Thạnh, Phú Nhuận, Bình Tân, Gò Vấp, Thủ Đức, Quận 12, Quận 10, Quận 3, Quận 2, Quận 6, Quận 7, Quận 8, Quận 9, Quận 11,… và các tỉnh thành lân cận Tp Hồ Chí Minh.
An Cư đánh giá thước đo thành công dựa trên các yếu tố về chất lượng cao, an toàn tại công trường, giá hợp lý và các giải pháp với tiến độ phù hợp. An Cư đã và đang nhận được sự quan tâm của rất nhiều khách hàng cho dịch vụ thi công phần thô nhân công hoàn thiện và hợp đồng chìa khoá trao tay.
- Với chi phí cạnh tranh, dịch vụ tốt, uy tín, AN CƯ đã và đang làm hài lòng rất nhiều chủ đầu tư khó tính, có kỹ thuật, hiểu về công việc xây dựng.
- Đội ngũ quản lý giàu kinh nghiệm, trách nhiệm, hệ thống vận hành công ty quy chuẩn, đội thợ thi công chọn lọc, có đào tạo bài bản, có văn hoá lao động tốt.
- Với kiến thức tốt về luật xây dựng, nhiều kinh nghiệm trong quản lý xây dựng dân dụng ở tphcm, nên mọi vấn đề về pháp lý công ty An Cư tự tin là đơn vị đứng đầu.
- Cam kết hợp đồng thầu rõ ràng – minh bạch, đội thợ thi công chuyên nghiệp, đặt biệt thợ thi công điện – nước, sơn nước tuyệt vời, kỹ sư, kiến trúc sư nhiệt huyết 100%.
- Sử dụng vật tư chính hãng, đúng thoả thuận với hợp đồng, tuyệt đối không đưa vật tư giả, kém chất lượng và công trình. Bao kiểm tra, kiểm định và chịu phạt lỗi vi phạm 50 triệu đồng/lỗi nếu chủ đầu tư phát hiện công ty vi phạm…
- Các gói hợp đồng của An Cư đúng chuẩn, khách hàng được miễn phí hoàn chỉnh bộ hồ sơ thiết kế, miễn phí xin phép xây dựng, miễn phí mọi chi phí thanh kiểm tra trong quá trình xây dựng, hổ trợ các thủ tục hoàn công nhanh gọn.
Dù khách hàng lựa chọn dịch vụ xây nhà phần thô hay xây nhà trọn gói, An Cư cũng sẽ khuyến mãi kèm theo về vật liệu và nhân công. Ngoài ra công ty còn có các chính sách bảo hành riêng cho những công trình thi công như:
- Bảo hành 30 năm cho phần kết cấu
- Bảo hành 5 năm cho phần hoàn thiện
- Bảo hành về các loại vật tư đã sử dụng trong quá trình thi công

An Cư cam kết bảo hành công trình trong suốt 30 năm cho phần kết cấu và 5 năm cho phần hoàn thiện
Xây Dựng An Cư tự hào khi là công ty thiết kế và xây dựng uy tín tại Thành Phố Hồ Chí Minh và các tỉnh lân cận, chuyên thiết kế, thi công và xây nhà trọn gói. An Cư cũng là đơn vị lập bảng báo giá thi công xây dựng chuẩn và chi tiết nhất, ngoài ra chúng tôi có:
Điểm khác biệt của An Cư mang lại cho khách hàng
- Miễn phí 100% phí hồ sơ thiết kế hoàn chỉnh
- Miễn phí 100% chi phí thanh tra xây dựng. Cam kết không phát sinh.
- Hợp đồng minh bạch, rõ ràng, chặt chẽ.
- Kiến thức vững về luật xây dựng và pháp lý.
- Công trình có kỹ sư giám sát thi công 24/7
- Báo cáo chi tiết tiến độ thi công hằng ngày
- 100% công trình tự tổ chức thi công
- 100% máy móc thuộc sở hữu của an cư
- Cam kết sử dụng vật tư chính hãng
- Ống chờ điện nước hoàn chỉnh
- Đóng lưới mắt cáo chống nứt trước khi tô tường
- Kiểm tra chống thấm bằng cách ngâm nước 48h. Nền trệt đổ bê tông.
- Bảo hành chống thấm 5 năm, kết cấu 30 năm.
- An toàn công trình lân cận
Được thành lập từ năm 2009, đã trải qua 15 năm tính đến nay chúng tôi có thể tự hào nói rằng những công trình đã thực hiện, những khách hàng đến của An Cư đều đã có được sự hài lòng nhất có thể, cụ thể có thể xem qua một số công trình đã và đang được thực hiện.
Thông tin liên hệ xây dựng căn hộ dịch vụ trọn gói An Cư
CÔNG TY TNHH ĐẦU TƯ PHÁT TRIỂN NHÀ AN CƯ- Trụ sở chính: 36 Bàu Cát 7, Phường 14, Q. Tân Bình, TP. Hồ Chí Minh
- Xưởng Nhôm Kiếng và Lan Can: Số 2 Đường 14, Nhuận Đức, Củ Chi
- Xưởng Nội Thất Gỗ An Cường: E6/163B ấp 5, Phong Phú, Bình Chánh
- Hotline: 0933.834.369 – 0789.922.299
- Email: xaydungancu@gmail.com
- Website: https://xaydungancu.com



.png)
.png)
(47).png)







